طرح ها و نقشه ها

اهداف مهندسی معکوس و بومی سازی در شرکت کاراوران صنعت خاورمیانه

شرکت کاراوران صنعت خاورمیانه با در اختیار داشتن ناوگان گسترده ای از ماشین الات معدنی و راهسازی برای تولید پایدار و همچنین انجام تعهدات تولید خود نیاز به تامین حجم گسترده ای از قطعات یدکی و مصرفی دارد تا بتواند به تعهدات تولید خود عمل کند و در کنار  تولید پایدار خلق ثروت داشته باشد .

با توجه به تحریم های ظالمانه تحمیل شده بر کشور و مشکلات تامین ارز و واردات قطعات یدکی و مصرفی ماشین الات و همچنین جهت فائق آمدن بر توقفات تولید بر آن شدیم که با تکیه بر دانش و توان داخل  برای ساخت و تولید قطعات اضطراری و حائز اهمیت برنامه ریزی صورت پذیرد .

ماشین آلات شرکت کاراوران صنعت خاورمیانه از کشور چین خریداری و در سال 1397 وارد کشورشده است و در سال 1398 مونتاژ  شد و برای نخستین بار توسط این شرکت در عرصه صنعت معدنکاری کشور عزیزمان بکار گرفته شده اند .پس بدیهی است که تامین قطعات یدکی این ماشین آلات از داخل بدلیل نا آشنایی بازار داخل با این تجهیزات تقریبا غیر ممکن بود به همین جهت میتوان گفت ساخت قطعات یدکی این ماشین الات توسط شرکت کاراوران صنعت خاورمیانه در داخل کشور برای نخستین بار باید انجام میگرفت .

همانگونه که در سخنان رهبر کشورمان آمده است (تحریم برای کشور ما که جنایت بود، ولی یک منافعی هم داشت که توانست این تهدید را به فرصت تبدیل کند. جوان‌های پرتلاش ما همت کردند و در بعضی از بخش هایی که کالاها وابسته به خارج بود، کشور را از خارج بی نیاز کردند و این ایجاد فناوری در داخل کشور است).

در راستای تحقق این دیدگاه در شرکت کاراوران صنعت خاورمیانه با بررسی دقیق نیازمندی‌ها و بررسی قطعات مورد نیاز و قابل ساخت یک برنامه مهندسی معکوس مبتنی بر 2 فاز تهیه گردید .

فاز یک : قطعات اضطراری

فاز دو : قطعات حائز اهمیت

در فاز اول 100 ردیف کالا حائز اهمیت با درجه اولویت اضطراری انتخاب و در واحد ساخت اموربازرگانی مراحل مهندسی معکوس و بومی سازی آن در سال 1398 آغاز شد .

در اینجا به مهندسی معکوس و تولید اولین کالای ساخته شده در این شرکت اشاره می کنیم که در سال 1399 به سرانجام رسید و درحال حاضر بومی سازی شده و به تولید انبوه رسیده است .

پین عمودی نگهدارنده ناخن باکت شاول 3000 ( VERTICAL PIN TOOTH – SV2  ) که متشکل از سه روش ساخت از قبیل ریخته گری ، ماشین کاری و تزریق لاستیک میباشد که فرایند مهندسی معکوس این قطعه خاص برای اولین بار در ایران توسط شرکت کاراوران صنعت خاورمیانه صورت پذیرفت و به تولید انبوه رسیده است .

شایان ذکر است 90% قطعاتی که تا کنون این شرکت برای بومی سازی آنها اقدام کرده است در ایران برای اولین بار تولید شده است که دانش ساخت آن در اختیار شرکت کاراوران صنعت خاورمیانه می باشد .

واحد ساخت در اموربازرگانی شرکت کاراوران صنعت خاورمیانه به لطف خدا و حمایت مدیران و مسئولین محترم از سال 1398 تا حال حاضر توانسته است فرایند مهندسی معکوس 110 ردیف کالا را آغاز کند که 104 ردیف از این کالا ها بومی سازی شده و به تولید انبوه رسیده است که این 104 ردیف کالا شامل 424 قطعه میباشد که در ذیل به برخی از آن ها اشاره می کنیم :

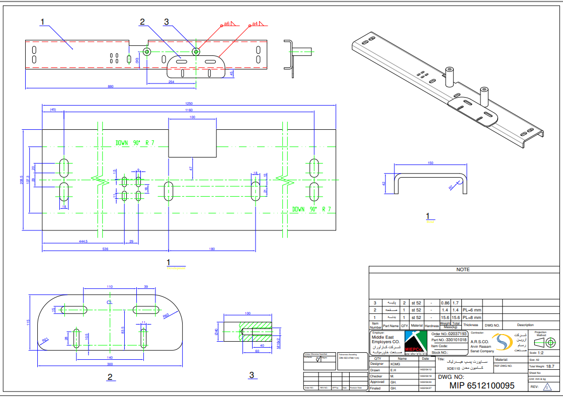
باکت ، رولیک ، اسپراکت ، چرخ آیدلر و لینک زنجیر شاول هیدرولیک 3000 – باکت بیل مکانیکی  1250 و  انواع پین و بوشهای اتصال باکت ، استیک و بوم شاول 3000و بیل مکانیکی 1250 – چرخ دنده های گیربکس و فاینال درایو شاول و بیل مکانیکی – انواع سیلندرهای هیدرولیک باکت ، استیک و بوم شاول 3000و بیل مکانیکی 1250

دستیابی به اهداف:

- این شرکت با تولید برخی قطعات مصرفی ماشین آلات معدنی و راهسازی خود توانسته تا حد زیادی بر توقف تولید فائق بیاید.

- با توجه به حجم وزنی و ریالی تولید این قطعات، میتوان گفت سالانه بالغ بر پانصد میلیارد ریال صرفه جویی اقتصادی صورت می پذیرد.  

مزایای انجام پروژه های مهندسی معکوس و بومی سازی:

- کنترل و نظارت بر مراحل تولید برای ارتقاء سطح کیفی قطعات

- کوتاه شدن زمان تامین قطعه

- ارتقاء سطح علمی و تجربه بخش های فنی و مهندسی شرکت

- ایجاد نوآوری و خلق دانش.